3rd. Semester
The project we were assigned was to design a new administrative office and manufacturing facility in Odense’s Tietgenbyen area.
Our goal was to design a functional and practical building with some architectural aspects.
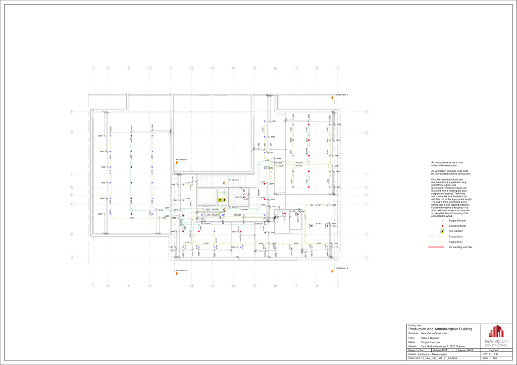
One of my main tasks was to calculate and design a functional ventilation system that would fulfill air quality requirements for both buildings.
Exam Grade: 10 (Danish grading system)







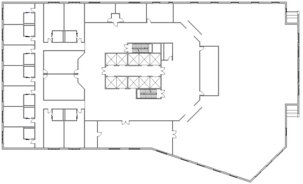
3rd. Semester Elective – Skyskraper
In this elective, the objective was to design a skyscraper in the middle of Odense C. The goal was to give us an understanding of different aspects to consider when designing a skyscraper.
Structure, access, sustainability, waste management, layout, and fire escape were one of the factors that needed to be considered. It became apparent that small and simple issues that would be solved in traditional constructions increase in scale magnificently when working with high-rise buildings.
Exam Grade: 10 (Danish grading system)
















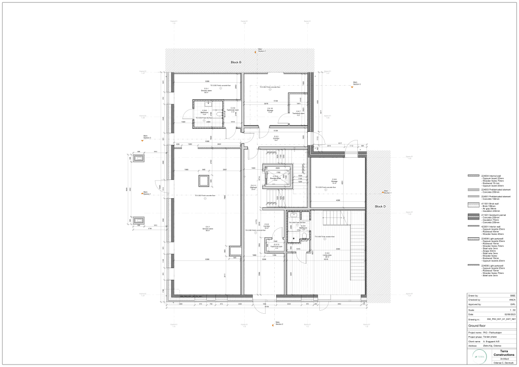
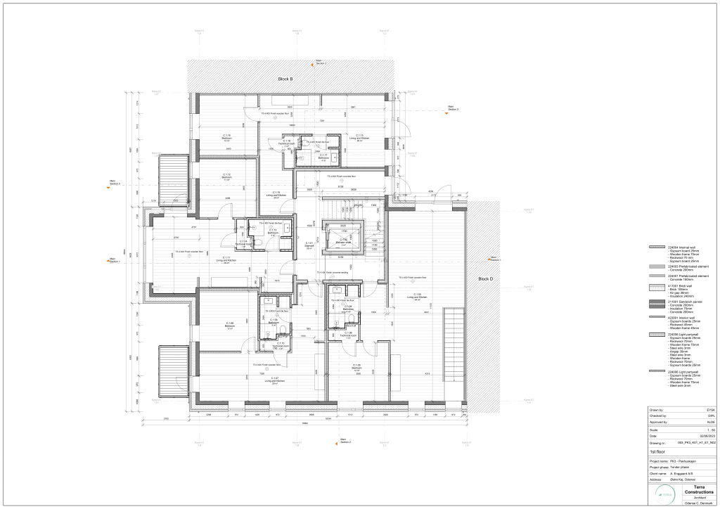
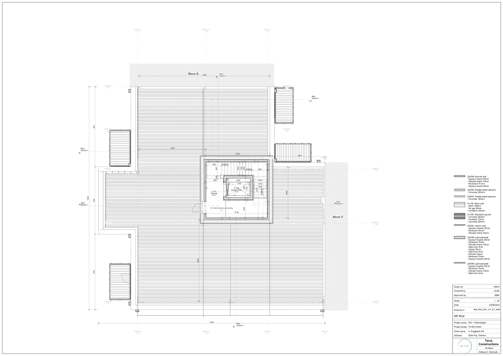
4th. Semester
The project was an apartment building with four blocks. Each block had its own complications and challenges to overcome
Our block had a grocery store on the ground floor and a roof terrace.
One of the biggest focuses was sustainability, working with LCA, and minimizing CO2 emissions.
The focus area that I had was the staircase and elevator. I had to solve and design every aspect of that area. I aimed to design solutions that were cost-friendly, easy to execute, and with low maintenance.
Exam Grade – Group: 12 (Danish grading system)
Exam Grade – Focus area: 12 (Danish grading system)













4th. Semester Elective – Dynamo
In this elective, I learned the fundamentals of Dynamo, and at the end of the elective, I was supposed to find an issue and solve it with Dynamo.
I wanted to find out if it would be possible to create animations in Revit using Dynamo and if it would be practical.
With some research and inspiration from external sources, I was able to create animations with set location, set rotation, and set parameter by name. By taking a movement and defining it into frames, e.g., if one movement has 120 frames, then it will be divided into 120 small movements, and pictures will be taken of each one, creating the frames.
I tried to make Dynamo create a gif or .mp4 out of the frames eliminating the need for an external program to create the image sequence. I was able to figure out that it was possible, but my knowledge and understanding of Python script is limited, and I was not able to make it work.
My final conclusion was that creating animation in Revit using Dynamo can be practical for smaller movements, but creating big animation take a long time, making it impractical.
I was able to gain a deeper understanding of Dynamo and the potential it has to automate many tasks, and I see myself using Dynoma in the future in my workflow.
Exam Grade: 12 (Danish grading system)



5th. Semester Elective – Sustainable Transformation and Renovation
In this elective, the objective was to renovate the historic building Muus Pakhus, which is the oldest structure in the Odense harbor. We were also supposed to develop the harbor area and define its usage.
Sustainability was the theme of the project, and we were supposed to find solutions and designs with the environment, social, and economy in mind.
In this elective, we did an inspection of the existing building, measuring the structure and the land around it. One of the tools I used was Recap Photo, which uses pictures I took with a drone and converts them into a 3D model. I used that model to get precise measurements of the existing details in the facade that were out of reach.
In the project we also did the appraisal, Design specification, and finally we did the Outline proposal.
This elective has given me a better insight into the process of sustainable reservations and a better understanding of sustainability.
Exam Grade: 12 (Danish grading system)










5th. Semester – Refurbishment & renovation
In this semester out objective was to do a renovation on an existing building Odense. The block is located in Vollsmose which is known as the ghetto of Odense. This renovation is one of many that are supposed to improve the area and get it out of the ghetto.
The building was built in 1967 and is then likely to contain asbestos PCB and led. There for we had to make special arrangements and plans for the demolition and restoration of the building.
One of my main task was to add new balconies to all of the apartments and solve all of the issues that might occur.
Exam Grade: 12 (Danish grading system)



